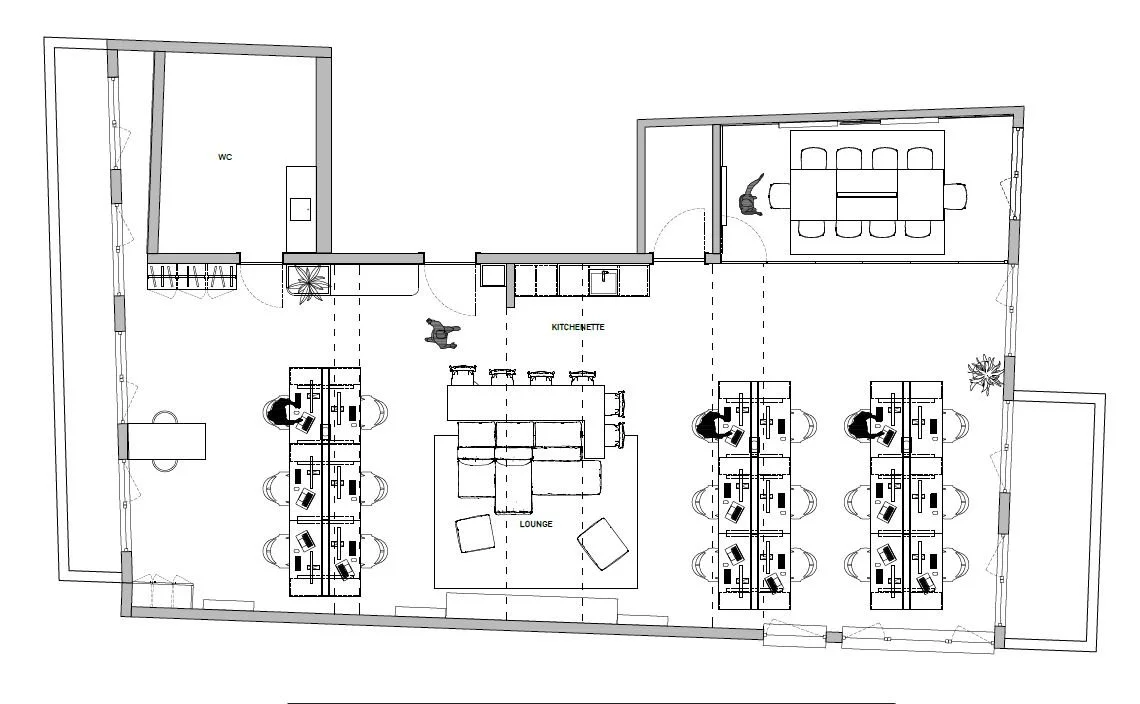
APOSTO HQ APOSTO HQ, located in Galata Istanbul, Conceptual Project ClientAPOSTOYear03/2023 Slide 1 Slide 1 (current slide) Slide 2 Slide 2 (current slide) Slide 3 Slide 3 (current slide) Slide 4 Slide 4 (current slide)